Объявления Петергофа Недвижимость Коммерческая недвижимость Аренда коммерческой недвижимости Торговые помещения
Завершено
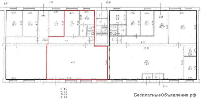
Сдам помещение в Н.Петергофе 1 этаж 96,2 кв.м
Сдается от собственника помещение с отдельным входом площадью 96,2 кв.м. , из них зал 62,2 кв.м. и подсобные помещения площадью 11,7 кв.м., 6,8 кв.м. Здание находится в Новом Петергофе. Рядом расположены: остановка общественного транспорта, дворцово-парковый ансамбль.
Компания «Рамбов» более 20 лет работает в сфере сдачи в аренду коммерческой недвижимости. Нашими арендаторами являются: магазины: «Пятерочка», «Дикси», «Магнит- Косметик», «РЕАЛЪ», Аптека «Невис», «Норман», Аптека «ЛекОптТорг», «Верный», «Мясной 1».«Евразия»,
В здании подключено: центральное отопление, вода, канализация, электричество.
Компания «Рамбов» более 20 лет работает в сфере сдачи в аренду коммерческой недвижимости. Нашими арендаторами являются: магазины: «Пятерочка», «Дикси», «Магнит- Косметик», «РЕАЛЪ», Аптека «Невис», «Норман», Аптека «ЛекОптТорг», «Верный», «Мясной 1».«Евразия»,
В здании подключено: центральное отопление, вода, канализация, электричество.
| Цена: |
125 060 руб
|
| Город: |
Петергоф
|
| Тип: | Сдаю |
| Автор: |
|
Регистрация с 24.01.2018
|
|
| Дата: | 09.06.2023 13:53 |
| Номер: | 2516027 |
Сделать объявление:
Ссылка на это объявление:
Местоположение
| Адрес: | Санкт-Петербург, Петергоф, улица Аврова, 10 |
| GPS: | 59.876739, 29.923484 |
Похожие объявления

Весь спектр услуг частного детектива в Саратове и по России. Розыск без вести пропавших, лиц утративших родственные связи, должников, моше...